HOME AKTUELLES BAUTEN / PROJEKTE FORSCHUNG LEISTUNGEN BÜRO / KONTAKT
IBUS Architektengesellschaft mbH
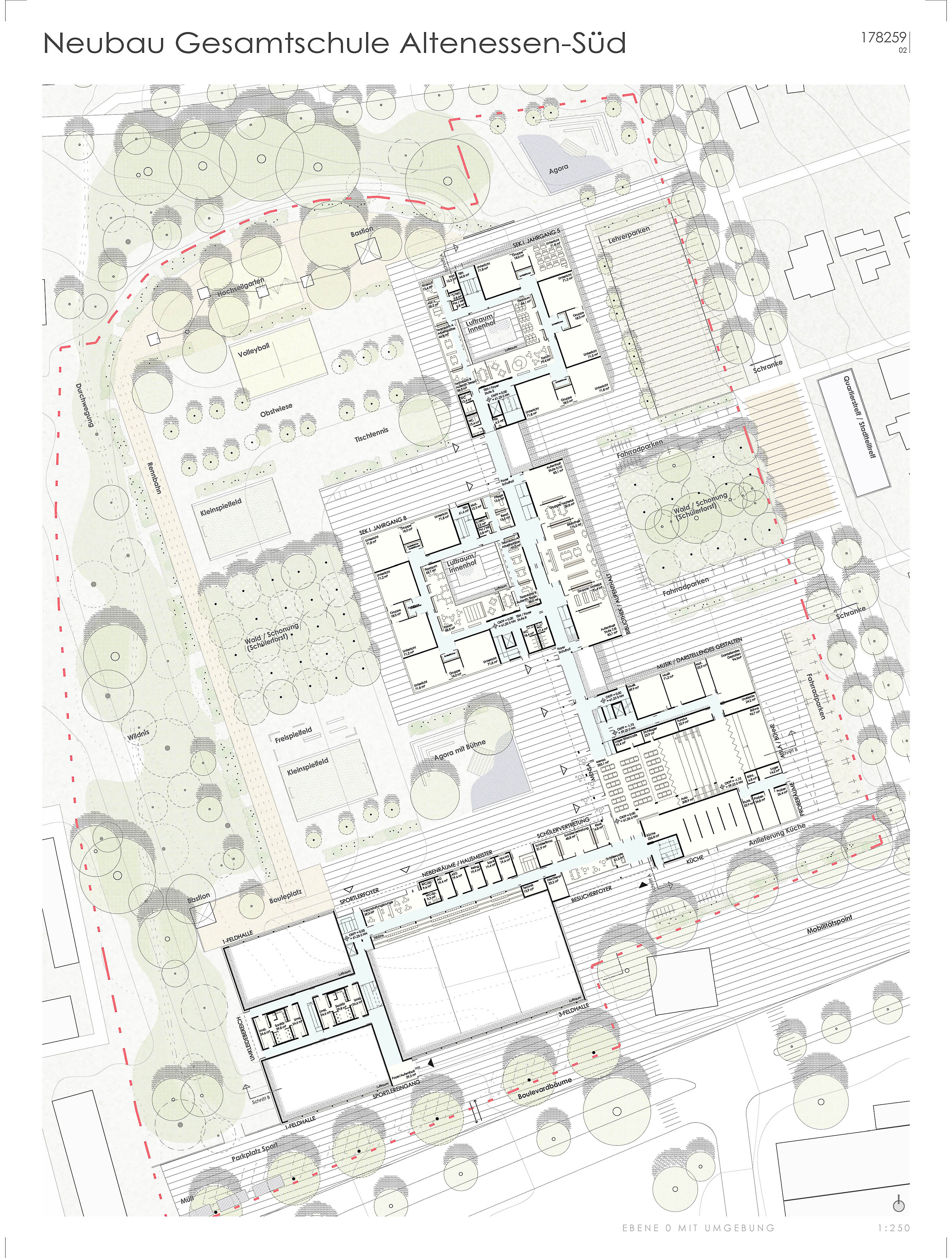
- Gesamtschule Altenessen Süd

Neubau eines Schulzentrums
Wettbewerb 2020


Blick auf den Haupteingang der Schule  
   
   
   
   
Zurück zum Seitenanfang Zur Projektliste